MOLINO DELLE ARMI/CORSO ITALIA PRESTIGIOSA ABITAZIONE MQ 196

Milano - zona Missori

Rif: 196CorsoItalia
Condividi Linkedin Whatsapp Stampa
€ 1.680.000
Appartamento
196 Mq
4 Vani
Classe energetica E
3 Camere
2 Bagni
Garage
Ascensore
MOLINO DELLE ARMI/SANTA SOFIA

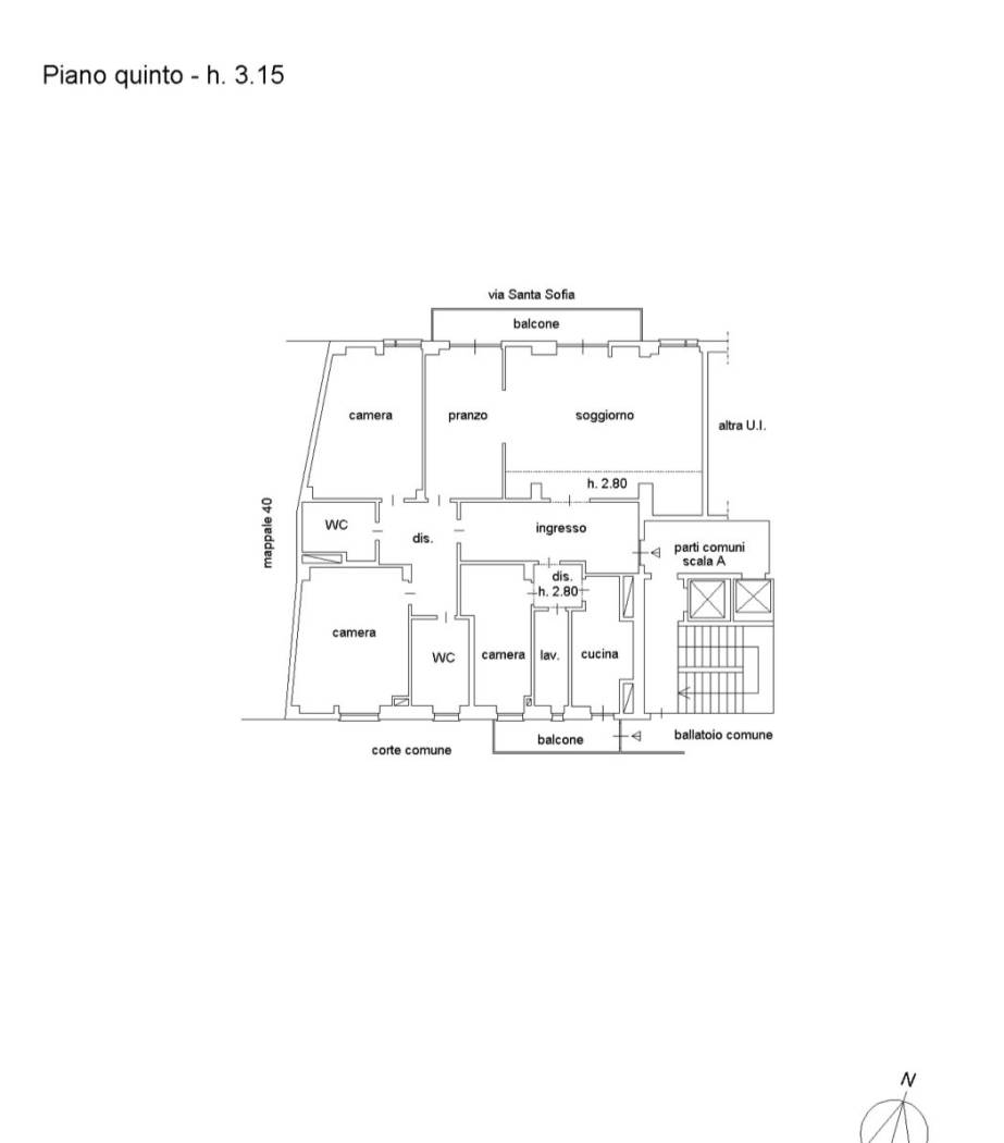
In stabile signorile anni '60 riqualificato nelle parti comuni, proponiamo abitazione posta al quinto piano, con portineria e ascensore, di 196 mq circa composta da : doppi ingressi, salone doppio, sala da pranzo, due camere, guardaroba, cucina, tripli servizi, ripostiglio, due balconi.
L'abitazione si sviluppa su una pianta regolare di taglio rettangolare con doppia esposizione, questo permette un'efficiente distribuzione degli spazi interni.
Da ristrutturare.
La posizione centralissima è strategica in quanto dotata di negozi e servizi e con la fermata Santa Sofia della MM Blu linea 4 sotto casa e la MM3 Gialla Missori , rendendo gli spostamenti in città estremamente comodi.
Completa la proprietà una cantina.
Possibilità ampio box nello stabile.
Per ulteriori informazioni: Gussetti Immobiliare, via Vincenzo Monti 8, tel. 0246712713- 338.7792311
Per tutte le nostre proposte visitate il nostro sito - www.gussettiimmobiliare.com Offriamo anche un servizio di valutazione del vostro immobile, completamente gratuito e senza impegno. Tutti i dati sopra indicati sono indicativi e non costituiscono elemento contrattuale.

Dettaglio immobile

Contratto Vendita
Rif 196CorsoItalia
Prezzo € 1.680.000
Provincia Milano
Comune Milano
Zona Missori
Superficie 196 mq
Vani 4
Camere 3
Bagni 2
Classe energetica E (DL 192/2005)
EPI 189.96 kwh/m2 anno
Piano 5 / 6
Riscaldamento centralizzato
Condizioni da ristrutturare
Spese condominiali € 1.000
Anno di costruzione 1963
Ascensore si
Garage singolo si
Cantina si
Cucina semiabitabile
Balcone si

Consistenze

Descrizione Superficie Sup. comm.
Principali
Immobile - 5° piano 196 Mq 196 Mqc
Totale 196 Mqc

Video

Planimetrie

Richiedi maggiori informazioni

Autorizzazione al trattamento dei dati personali+
Dichiaro di aver letto l'informativa sulla privacy ed accetto le condizioni d'utilizzo del servizio.
Riempi il campo con il codice riportato nell'immagine*
Codice Captcha
Chiamaci Contattaci